Каталог товаров
Форсунка гидромассажная Hayward TURBO-JET SP1450TVE под лайнер (50 мм)
Форсунка гидромассажная Hayward TURBO-JET SP1450TVE под лайнер (50 мм)
Все о товаре
Описание
Характеристики











Код товара: SP1450TVE
от 70 800 ₸
В избранное
Коммерческие
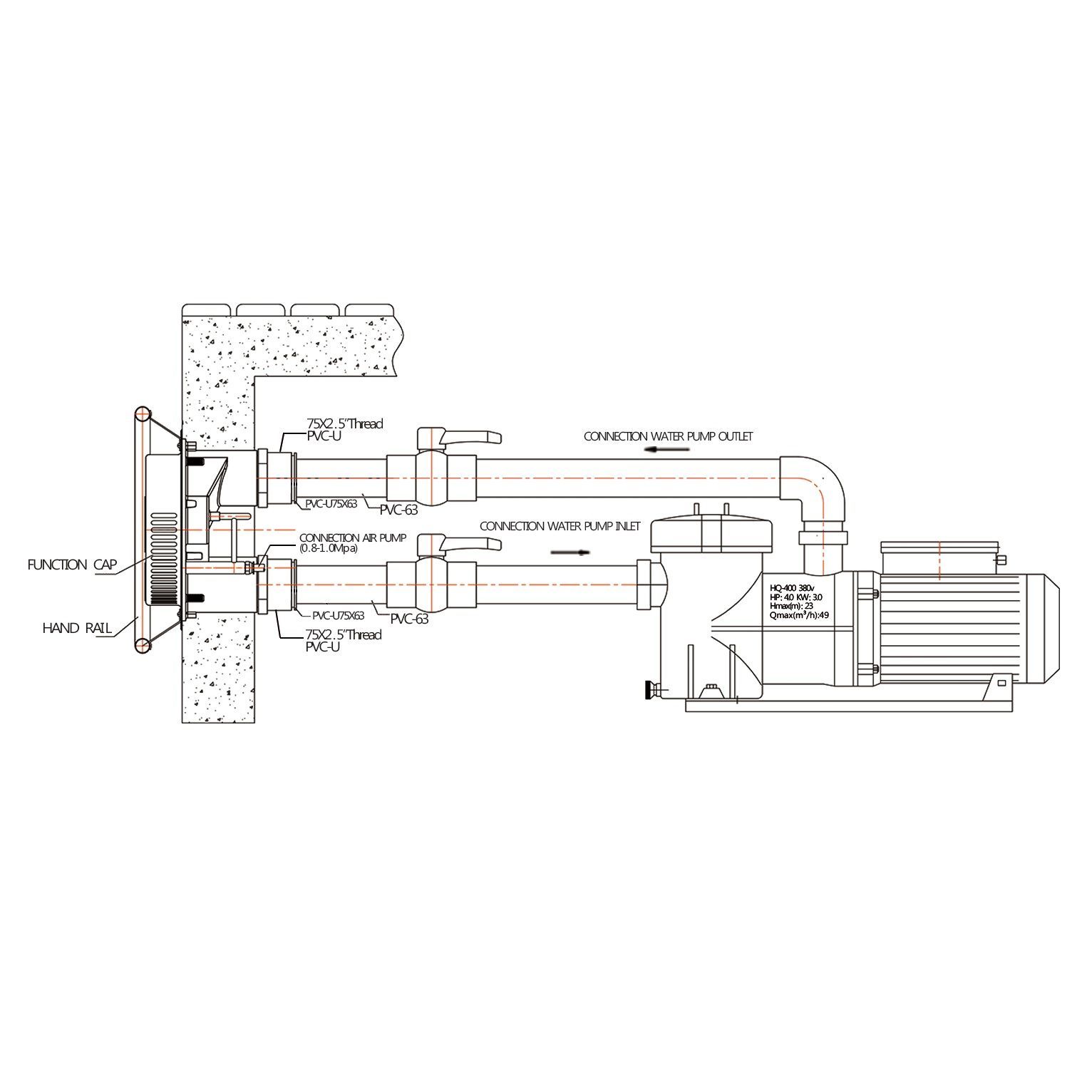
Форсунка гидромассажная Hayward. Предназначена для бассейнов с облицовкой из лайнера. Используется для создания мощных потоков воды, насыщенных пузырьками воздуха. За счет двойной системы "Вентури", смешивание воды в бассейне и воздуха в различных соотношениях, поток форсунки увеличивается примерно в 2 раза. Таким образом обеспечивается оптимальный гидромассажный эффект, позволяющий превратить бассейн в зону отдыха и релакса. Пропускная способность: 15 м³/чСоединение: 50 мм
Похожие товары